Zimmer

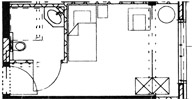
Beispiel für ein Einzelzimmer / Doppelzimmer:

EinzelzimmerDoppelzimmer

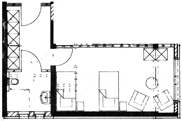
Beispiel für ein Einzelzimmer / Doppelzimmer (Demenz WG):

 

 

 

 

 

 

zum Anfang